Kaliska - Mieszkania Kaliska

Kod mieszkania 24
Status nieruchomości - sprzedane sprzedane
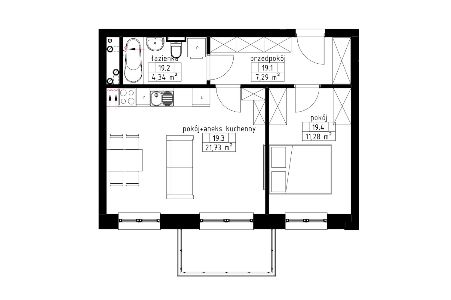
Powierzchnia
44,77 m2
Kondygnacja
Piętro I
Segment
9c
Cena za metr
6 679 zł/m²
Cena mieszkania
299 021 zł
Pokoje
2
Pomieszczenia przynależne (w cenie):
Piwnica / schowek nr 12  
10 000 zł
Pomieszczenia przynależne (w cenie):
  • Piwnica / schowek nr 12  
    10 000 zł
Wyświetl historię cen tej nieruchomości

Opis

Mieszkanie 2- pokojowe numer 24 usytuowane na pierwszym piętrze. Powierzchnia użytkowa to 44,63 m 2. Składa się z: przedpokoju, pokoju dziennego z aneksem, sypialni, łazienki i balkonu. Mieszkanie w stanie deweloperskim do własnej aranżacji. Każde mieszkanie posiada balkon, parterowe- ogródek, co zapewnia dodatkową przestrzeń do relaksu i odpoczynku na świeżym powietrzu. Mieszkanie w stanie deweloperskim do własnej aranżacji. Do dyspozycji mieszkańców plac zabaw, na terenie nieruchomości miejsca parkingowe, bliskość punktów handlowych. Ogrzewanie gazowe poprzez własną kotłownię w budynku. Do każdego mieszkania przynależy komórka lokatorska.