Kaliska - Mieszkania Kaliska

Kod mieszkania 25
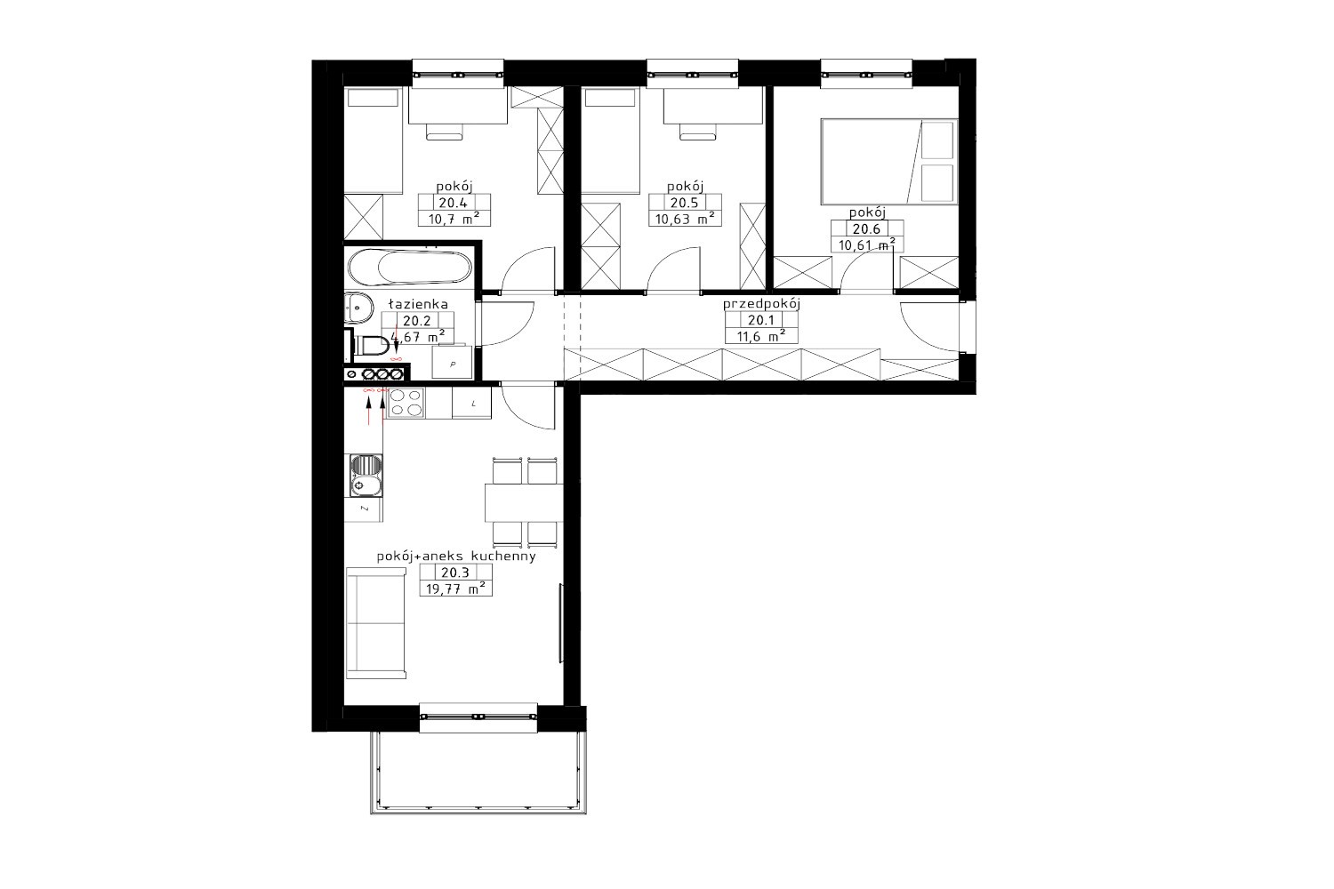
Status nieruchomości - wolne wolne
Powierzchnia
67,90 m2
Kondygnacja
Piętro I
Segment
9c
Cena za metr
6 507 zł/m²
Cena mieszkania
441 805 zł
Pokoje
4
Pomieszczenia przynależne (w cenie):
Piwnica / schowek nr 10  
10 000 zł
Pomieszczenia przynależne (w cenie):
  • Piwnica / schowek nr 10  
    10 000 zł
Wyświetl historię cen tej nieruchomości

Opis

Mieszkanie 4- pokojowe numer 25 usytuowane na pierwszym piętrze. Powierzchnia użytkowa to 67,97 m 2. Składa się z: przedpokoju, pokoju z aneksem, trzech sypialni, łazienki i balkonu. Mieszkanie w stanie deweloperskim do własnej aranżacji. Każde mieszkanie posiada balkon, parterowe- ogródek, co zapewnia dodatkową przestrzeń do relaksu i odpoczynku na świeżym powietrzu. Mieszkanie w stanie deweloperskim do własnej aranżacji. Do dyspozycji mieszkańców plac zabaw, na terenie nieruchomości miejsca parkingowe, bliskość punktów handlowych. Ogrzewanie gazowe poprzez własną kotłownię w budynku. Do każdego mieszkania przynależy komórka lokatorska w cenie 10 000 zł.