Pruszcz Gdański - Osiedle Kasprowicza

Kod mieszkania 11
Status nieruchomości - wolne wolne
Powierzchnia
42,47 m2
Kondygnacja
Piętro I
Segment
18 A
Cena za metr
12 400 zł/m²
Cena mieszkania
526 628 zł
Pokoje
2
Wyświetl historię cen tej nieruchomości
Prospekt informacyjny

Opis

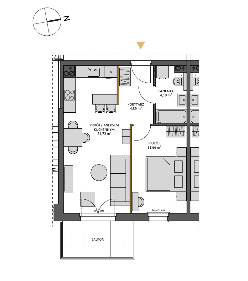
Mieszkanie A11 o powierzchni 42,47 m², składające się z korytarza, pokoju z aneksem kuchennych, pokoju, łazienki.

Wysoki standard wykończenia w stanie deweloperskim:

• ściany działowe w mieszkaniu wykonane w systemie Multigips,

• ściany i sufity wygładzone oraz pomalowane na biało,

• ogrzewanie podłogowe z miejskiej sieci gazowej,

• balkon wykończony płytą gresową,




Udogodnienia dla mieszkańców:

• miejsca parkingowe dostępne na poziomie -1 oraz zewnętrzne,

• komórki lokatorskie na każdym poziomie budynku,

• wózkarnia w każdej klatce,

• cichobieżna winda,

• zamknięte osiedle,

• zagospodarowane patio z zielenią, miejscami wypoczynku, małą architekturą.



Planowane zakończenie budowy: kwiecień 2027 r.


Dodatkowe koszty związane z zakupem mieszkania:

• miejsce parkingowe w hali garażowej,

• koszty zawarcia umowy deweloperskiej oraz umowy przeniesienia własności.