Pruszcz Gdański - Osiedle Kasprowicza

Kod mieszkania 33
Status nieruchomości - wolne wolne
Powierzchnia
61,75 m2
Kondygnacja
Parter
Segment
18 A
Cena za metr
11 600 zł/m²
Cena mieszkania
716 300 zł
Pokoje
3
Pomieszczenia przynależne (w cenie):
Piwnica / schowek nr 22  
20 000 zł
Pomieszczenia przynależne (w cenie):
  • Piwnica / schowek nr 22  
    20 000 zł
Wyświetl historię cen tej nieruchomości
Prospekt informacyjny

Opis

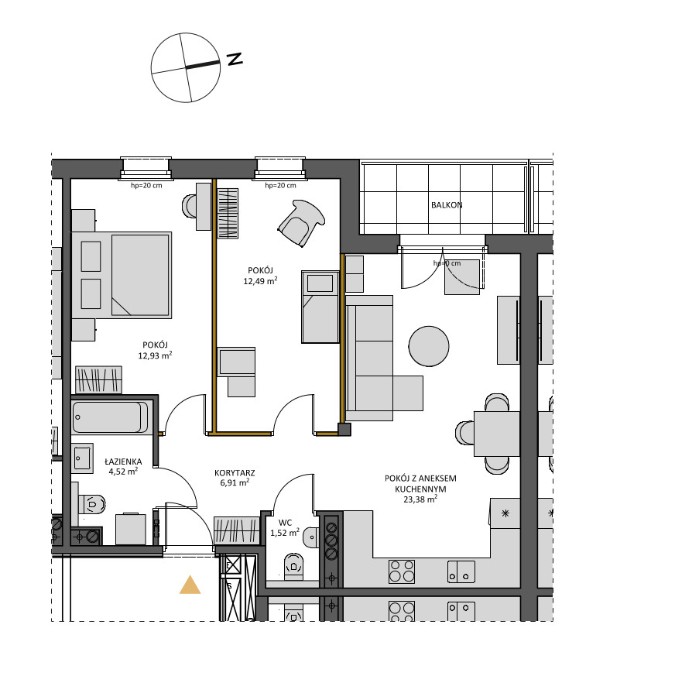
Mieszkanie A33 o powierzchni 61,75 m², składające się z korytarza, pokoju z aneksem kuchennych, pokoju, pokoju, łazienki, wc.

Wysoki standard wykończenia w stanie deweloperskim:

• ściany działowe w mieszkaniu wykonane w systemie Multigips,

• ściany i sufity wygładzone oraz pomalowane na biało,

• ogrzewanie podłogowe z miejskiej sieci gazowej,

• balkon wykończony płytą gresową,




Udogodnienia dla mieszkańców:

• miejsca parkingowe dostępne na poziomie -1 oraz zewnętrzne,

• komórki lokatorskie na każdym poziomie budynku,

• wózkarnia w każdej klatce,

• cichobieżna winda,

• zamknięte osiedle,

• zagospodarowane patio z zielenią, miejscami wypoczynku, małą architekturą.



Planowane zakończenie budowy: kwiecień 2027 r.


Dodatkowe koszty związane z zakupem mieszkania:

• miejsce parkingowe w hali garażowej,

• koszty zawarcia umowy deweloperskiej oraz umowy przeniesienia własności.