Pruszcz Gdański - Osiedle Kasprowicza

Kod mieszkania 35
Status nieruchomości - wolne wolne
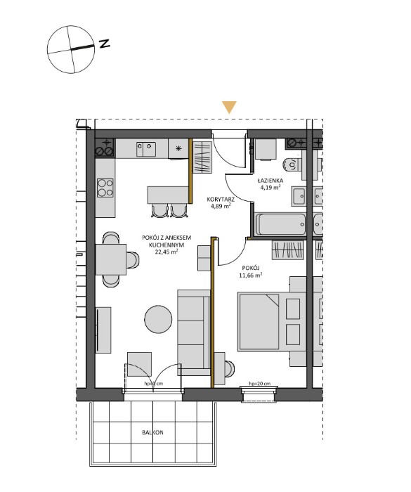
Powierzchnia
43,19 m2
Kondygnacja
Parter
Segment
18 A
Cena za metr
11 800 zł/m²
Cena mieszkania
509 642 zł
Pokoje
2
Wyświetl historię cen tej nieruchomości
Prospekt informacyjny

Opis

Mieszkanie A35 o powierzchni 43,19 m², składające się z korytarza, pokoju z aneksem kuchennych, pokoju, łazienki.

Wysoki standard wykończenia w stanie deweloperskim:

• ściany działowe w mieszkaniu wykonane w systemie Multigips,

• ściany i sufity wygładzone oraz pomalowane na biało,

• ogrzewanie podłogowe z miejskiej sieci gazowej,

• balkon wykończony płytą gresową,




Udogodnienia dla mieszkańców:

• miejsca parkingowe dostępne na poziomie -1 oraz zewnętrzne,

• komórki lokatorskie na każdym poziomie budynku,

• wózkarnia w każdej klatce,

• cichobieżna winda,

• zamknięte osiedle,

• zagospodarowane patio z zielenią, miejscami wypoczynku, małą architekturą.



Planowane zakończenie budowy: kwiecień 2027 r.


Dodatkowe koszty związane z zakupem mieszkania:

• miejsce parkingowe w hali garażowej,

• koszty zawarcia umowy deweloperskiej oraz umowy przeniesienia własności.