Pelplin - Osiedle Limanowskiego

Kod mieszkania 58
Status nieruchomości - wolne wolne
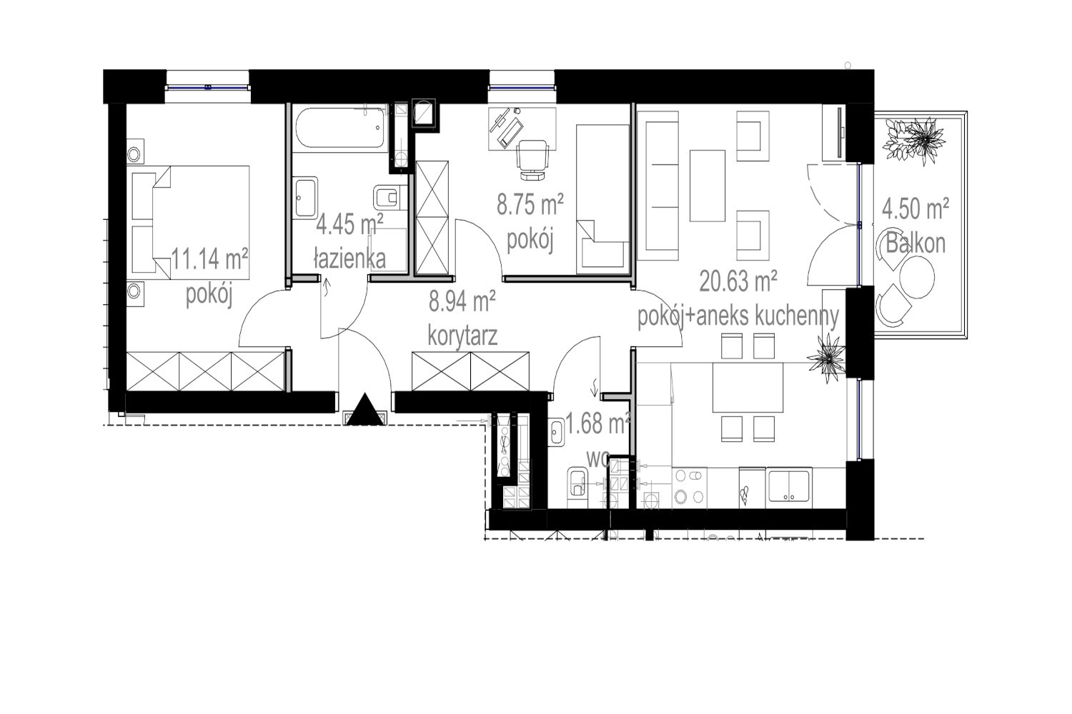
Powierzchnia
55,48 m2
Kondygnacja
Piętro I
Segment
16
Cena za metr
8 048 zł/m²
Cena mieszkania
446 513 zł
Pokoje
3
Pomieszczenia przynależne (w cenie):
Piwnica / schowek nr 36  
Pomieszczenia przynależne (w cenie):
  • Piwnica / schowek nr 36  
Wyświetl historię cen tej nieruchomości

Opis

Komfortowe 3 pokojowe mieszkanie numer 58 usytuowane na I piętrze segmentu B. Powierzchnia użytkowa to 55,59 m kw. Składa się z: przedpokoju, pokoju dziennego z aneksem, dwóch sypialni i łazienki i balkonu. Mieszkanie w stanie deweloperskim do własnej aranżacji. Do dyspozycji mieszkańców komfortowa cichobieżna winda, zewnętrzny ogrodzony plac zabaw, parking naziemny. Ogrzewanie gazowe poprzez własną kotłownię. Do mieszkania przynależy komórka lokatorska w cenie mieszkania. Możliwość zakupu indywidualnego garażu.