Pelplin - Osiedle Limanowskiego

Kod mieszkania 6
Status nieruchomości - wolne wolne
Powierzchnia
55,52 m2
Kondygnacja
Piętro II
Segment
16
Cena za metr
8 028 zł/m²
Cena mieszkania
445 718 zł
Pokoje
3
Pomieszczenia przynależne (w cenie):
Piwnica / schowek nr 4  
Pomieszczenia przynależne (w cenie):
  • Piwnica / schowek nr 4  
Wyświetl historię cen tej nieruchomości

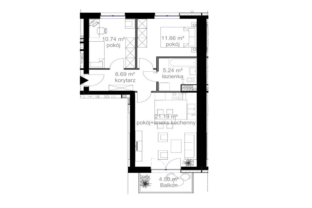
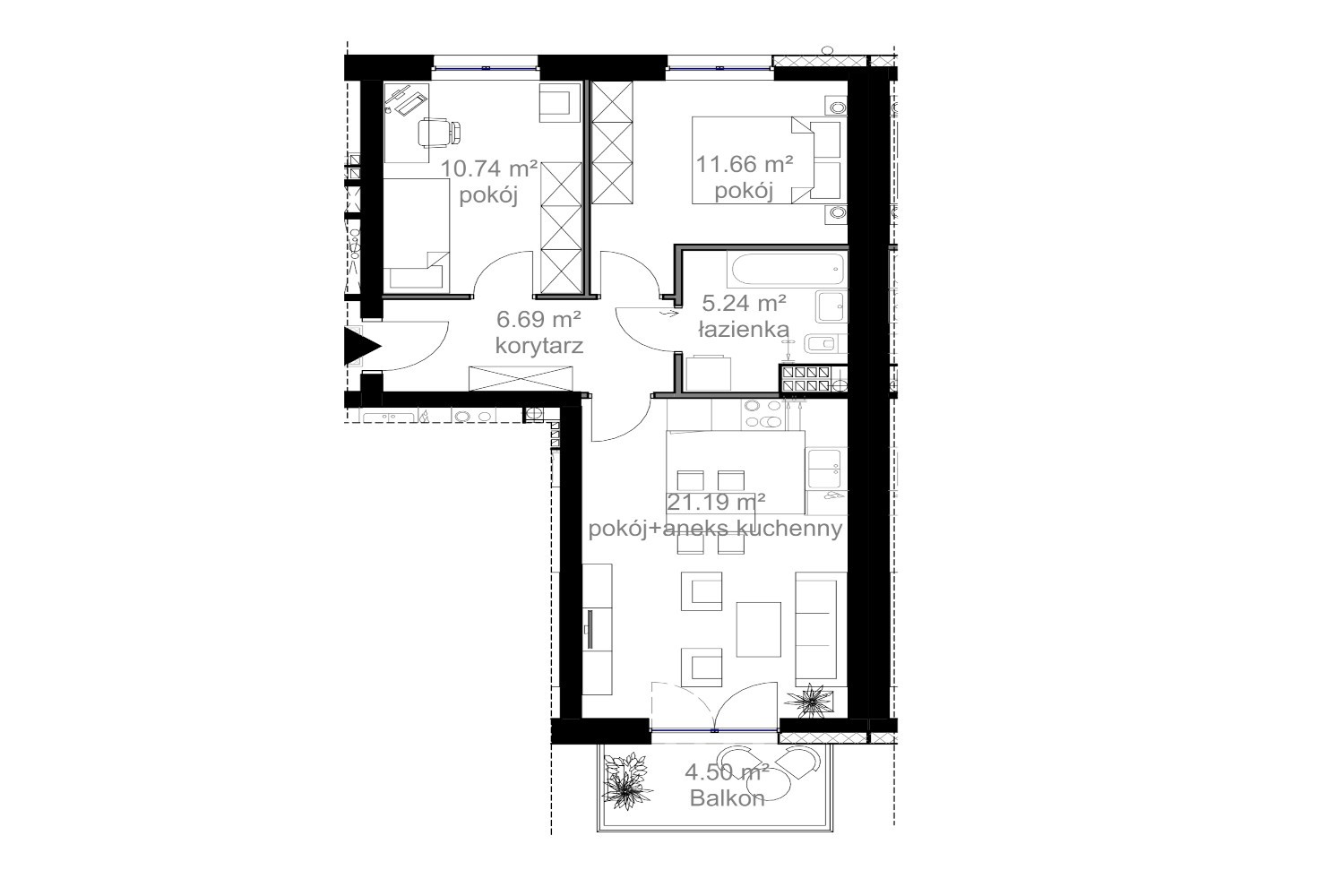
Opis

Komfortowe 3 pokojowe mieszkanie numer 6 usytuowane na II piętrze segmentu A. Powierzchna użytkowa to 55,52 m kw. Składa się z: przedpokoju, pokoju dziennego z aneksem, dwóch sypialni i łazienki i balkonu. Mieszkanie w stanie deweloperskim do własnej aranżacji. Do dyspozycji mieszkańców komfortowa cichobieżna winda, zewnętrzny ogrodzony plac zabaw, parking naziemny. Ogrzewanie gazowe poprzez własną kotłownie. Do mieszkania przynależy komórka lokatorska w cenie mieszkania. Możliwość zakupu indywidualnego garażu.