Pelpin - Osiedle Limanowskiego

Kod mieszkania 7
Status nieruchomości - sprzedane sprzedane
Powierzchnia
37,82 m2
Kondygnacja
Piętro II
Segment
16
Cena za metr
7 703 zł/m²
Cena mieszkania
291 312 zł
Pokoje
2
Pomieszczenia przynależne (w cenie):
Piwnica / schowek nr 25  
Pomieszczenia przynależne (w cenie):
  • Piwnica / schowek nr 25  
Wyświetl historię cen tej nieruchomości

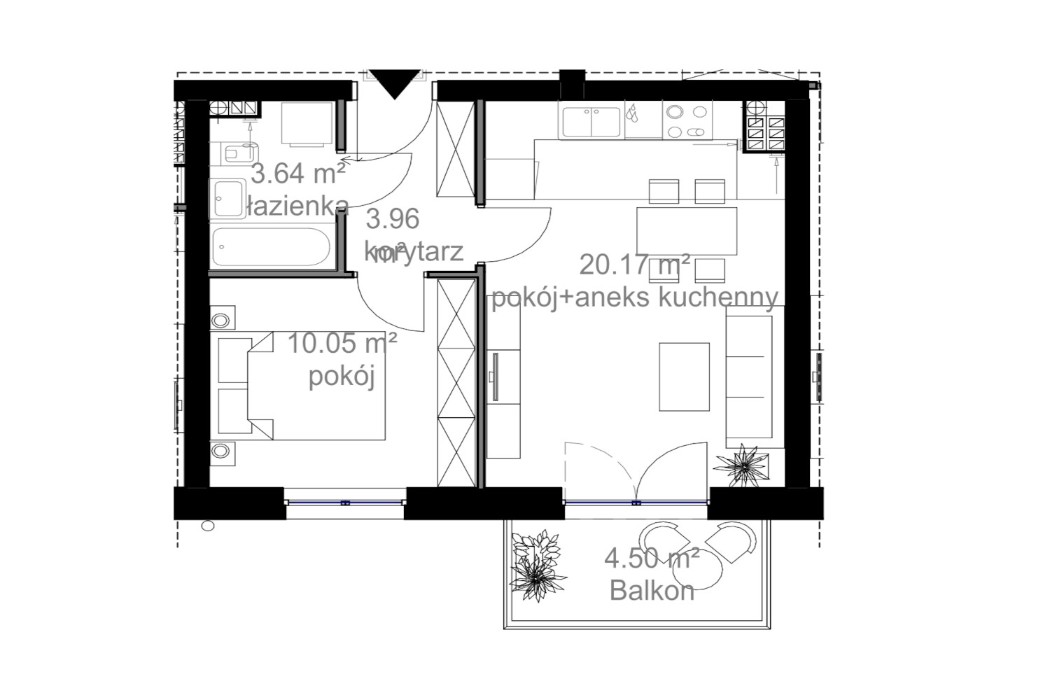
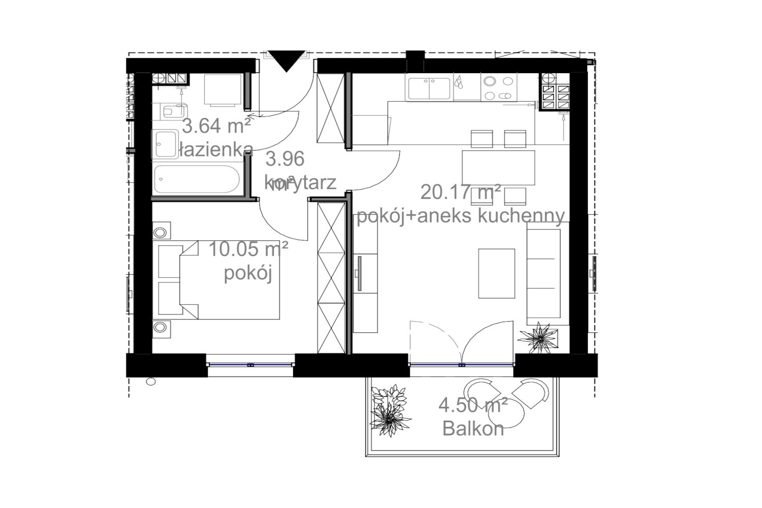
Opis

Komfortowe 2 pokojowe mieszkanie numer 7 usytuowane na II piętrze segmentu A. Powierzchna użytkowa to 37,82 m kw. Składa się z: przedpokoju, pokoju dziennego z aneksem, sypialni, łazienki i balkonu. Mieszkanie w stanie deweloperskim do własnej aranżacji. Do dyspozycji mieszkańców komfortowa cichobieżna winda, zewnętrzny ogrodzony plac zabaw, parking naziemny. Ogrzewanie gazowe poprzez własną kotłownie. Do mieszkania przynależy komórka lokatorska w cenie mieszkania. Możliwość zakupu indywidualnego garażu.