NOWE MIEJSCE W PELPLINIE

Pelplin - Osiedle Limanowskiego

Osiedle Limanowskiego to nowoczesny kompleks budynków o unikalnej architekturze.

Lokalizacja obkietu Osiedle Limanowskiego, Pelplin Więcej o inwestycji

Osiedle Limanowskiego

Spokój natury blisko miasta

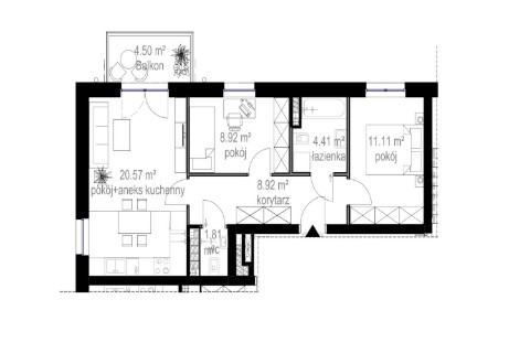
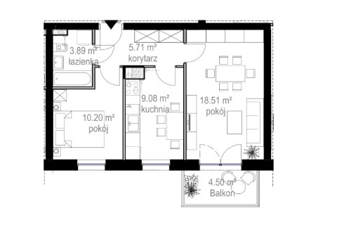
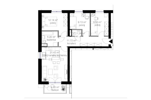
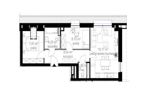
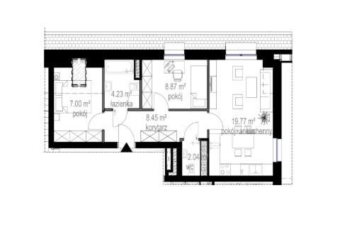
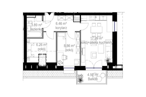
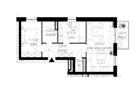
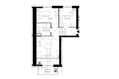
Osiedle Limanowskiego to nowoczesny kompleks budynków o unikalnej architekturze. Ten 5-kondygnacyjny budynek posiadaja łącznie 77 mieszkań w stanie deweloperskim dostępnych od ręki o praktycznych układach i powierzchniach od 25 do 71 m². Ponadto na osiedlu usytuowane są miejsca postojowe na parkingu naziemnym oraz indywidualne hale garażowe na poziomie parteru z bramami sterowanymi pilotem.
Dzięki starannie przemyślanej części wspólnej w skład której wchodzą: plac zabaw, ławeczki, tereny zielone, stojaki na rowery- mieszkańcy osiedla będą mogli znaleźć swoją przestrzeń na świeżym powietrzu. Komfort i bezpieczeństwo mieszkańców zwiększa ogrodzenie systemowe, monitoring, windy, instalacja domofonowa, oświetlenie.

Zamieszkaj w Pelplinie

Wszystko pod ręką

Pelplin to miasto, które oferuje wiele udogodnień i atrakcji, dzięki czemu można powiedzieć, że ma wszystko „pod ręką”.
Oto kilka powodów, dla których Pelplin może być postrzegany jako miasto, w którym wszystko jest łatwo dostępne:

Kaliska - ilość mieszkań

Komunikacja

Mimo swojego kameralnego charakteru, Pelplin ma dobrze rozwiniętą sieć komunikacyjną. Jest łatwo dostępny zarówno samochodem, jak i transportem publicznym, co ułatwia podróże zarówno w obrębie miasta, jak i do pobliskich miejscowości.

Kaliska - ilość mieszkań

Sklepy i usługi

W Pelplinie znajdują się sklepy spożywcze, apteki, punkty usługowe oraz inne niezbędne placówki handlowe, co sprawia, że mieszkańcy mają łatwy dostęp do codziennych zakupów i usług.

Kaliska - ilość mieszkań

Edukacja

Miasto oferuje placówki edukacyjne, takie jak szkoły podstawowe, gimnazja i szkoły średnie, co jest istotne dla rodzin z dziećmi, zapewniając im wygodny dostęp do edukacji.

Kaliska - ilość mieszkań

Opieka zdrowotna

W Pelplinie znajdują się przychodnie, gabinety lekarskie oraz apteki, co zapewnia mieszkańcom łatwy dostęp do opieki zdrowotnej i leków.

Kaliska - ilość mieszkań

Przyroda i rekreacja

Miasto jest otoczone piękną przyrodą, co sprzyja aktywnemu trybowi życia i rekreacji na świeżym powietrzu. Parki, tereny zielone i ścieżki rowerowe są łatwo dostępne dla mieszkańców.

Kaliska - ilość mieszkań

Kultura i rozrywka

Pomimo swojego rozmiaru, Pelplin może oferować różnorodne atrakcje kulturalne i rozrywkowe, takie jak muzea, które są łatwo dostępne dla mieszkańców.

ZAMIESZKAJ W PELPLINIE

Zamieszkaj w Pelplinie

Twoje miejsce na ziemi

Pelplin jest urokliwym miastem, które oferuje wiele atrakcji, co czyni je przyjaznym miejscem do zamieszkania. Jego spokojna atmosfera, malownicze otoczenie oraz niewielka liczba mieszkańców sprawia ze jest to idealne miejsce dla osób szukających spokoju i harmonii. Pomimo swojego kameralnego charakteru, Pelplin posiada dobrze rozwiniętą infrastrukturę komunikacyjną. Dzięki temu łatwo jest się dostać do większych miast w regionie, takich jak Gdańsk, Starogard Gdański czy Tczew. Miasto ma bogatą historię sięgającą średniowiecza, co przekłada się na liczne zabytki oraz atrakcje kulturalne. Słynna katedra w Pelplinie, będąca jednym z najważniejszych zabytków gotyku w Polsce, przyciąga wielu turystów i jest ważnym elementem dziedzictwa kulturowego regionu.

Odkryj Pelplin

Miasto dobrze skomunikowane
z całym regionem!

Autostrada

Łatwa droga z Pelplina do autostrady A1 to bez wątpienia idealny atut dla wszystkich pracujących w aglomeracji trójmiejskiej. Droga do Gdańska to zaledwie 57 km którą możemy pokonać w 45 min.

Stacja kolejowa

Ponadto istnieje możliwość podróży pociągiem. Pelplin posiada stację kolejową, z której można korzystać z połączeń kolejowych, w tym również do Trójmiasta. Pociągi kursują regularnie, co ułatwia podróżowanie między tymi miejscowościami.

Ścieżki rowerowe

W ostatnich latach coraz większą uwagę poświęca się infrastrukturze dla rowerzystów. Ścieżka rowerowa prowadzi z Pelplina do Starogardu Gdańskiego. Możesz wybrać się na krótką przejażdżkę lub na dłuższy wypad, korzystając z pięknych widoków i świeżego powietrza.

Osiedle Limanowskiego

Osiedle Limanowskiego w liczbach

Kaliska - ilość mieszkań
Ilość mieszkań
77 mieszkań
Kaliska - ilość mieszkań
Miejsca parkingowe
92 miejsca
Kaliska - ilość garaży
Ilość garaży
25 miejsc garażowych
Kaliska - Planowany termin oddania obiektu
Planowany termin oddania
Czerwiec 2024

Garaże

Status nieruchomości - wolne wolne

78

Lokalizacja obiektu Pelplin - Osiedle Limanowskiego
Limanowskiego 16

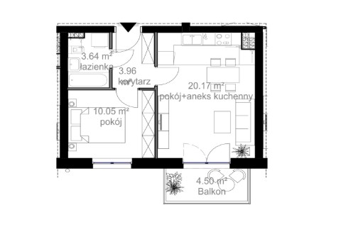
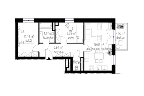
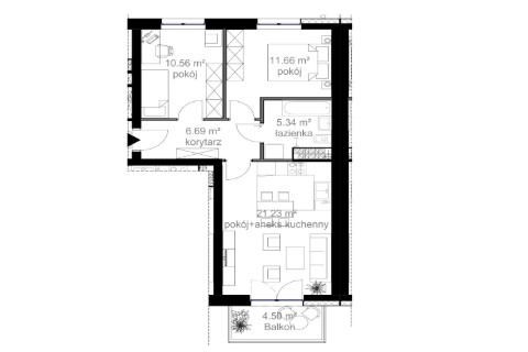
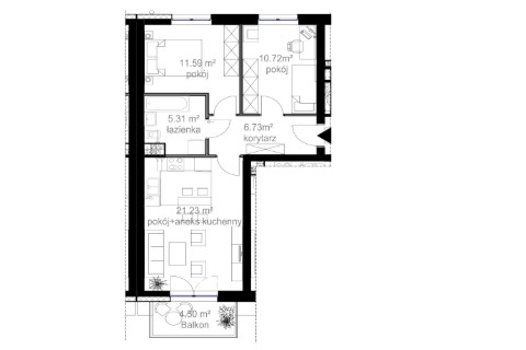
Metraż

18,03 m2

Piętro

Parter

Pokoje

-
70 000 zł
3 882 zł / m2
Status nieruchomości - sprzedane sprzedane

79

Lokalizacja obiektu Pelplin - Osiedle Limanowskiego
Limanowskiego 16

Metraż

31,87 m2

Piętro

Parter

Pokoje

-
Status nieruchomości - wolne wolne

80

Lokalizacja obiektu Pelplin - Osiedle Limanowskiego
Limanowskiego 16

Metraż

18,14 m2

Piętro

Parter

Pokoje

-
70 000 zł
3 859 zł / m2
Status nieruchomości - wolne wolne

81

Lokalizacja obiektu Pelplin - Osiedle Limanowskiego
Limanowskiego 16

Metraż

18,67 m2

Piętro

Parter

Pokoje

-
70 000 zł
3 749 zł / m2
Status nieruchomości - wolne wolne

82

Lokalizacja obiektu Pelplin - Osiedle Limanowskiego
Limanowskiego 16

Metraż

20,49 m2

Piętro

Parter

Pokoje

-
70 000 zł
3 416 zł / m2
Status nieruchomości - wolne wolne

83

Lokalizacja obiektu Pelplin - Osiedle Limanowskiego
Limanowskiego 16

Metraż

20,40 m2

Piętro

Parter

Pokoje

-
70 000 zł
3 431 zł / m2
Status nieruchomości - wolne wolne

84

Lokalizacja obiektu Pelplin - Osiedle Limanowskiego
Limanowskiego 16

Metraż

18,74 m2

Piętro

Parter

Pokoje

-
70 000 zł
3 735 zł / m2
Status nieruchomości - wolne wolne

85

Lokalizacja obiektu Pelplin - Osiedle Limanowskiego
Limanowskiego 16

Metraż

18,20 m2

Piętro

Parter

Pokoje

-
70 000 zł
3 846 zł / m2
Status nieruchomości - sprzedane sprzedane

86

Lokalizacja obiektu Pelplin - Osiedle Limanowskiego
Limanowskiego 16

Metraż

32,00 m2

Piętro

Parter

Pokoje

-
Status nieruchomości - wolne wolne

87

Lokalizacja obiektu Pelplin - Osiedle Limanowskiego
Limanowskiego 16

Metraż

17,76 m2

Piętro

Parter

Pokoje

-
70 000 zł
3 941 zł / m2
Status nieruchomości - wolne wolne

88

Lokalizacja obiektu Pelplin - Osiedle Limanowskiego
Limanowskiego 16

Metraż

17,63 m2

Piętro

Parter

Pokoje

-
70 000 zł
3 971 zł / m2
Status nieruchomości - wolne wolne

89

Lokalizacja obiektu Pelplin - Osiedle Limanowskiego
Limanowskiego 16

Metraż

17,95 m2

Piętro

Parter

Pokoje

-
70 000 zł
3 900 zł / m2
Status nieruchomości - wolne wolne

90

Lokalizacja obiektu Pelplin - Osiedle Limanowskiego
Limanowskiego 16

Metraż

18,00 m2

Piętro

Parter

Pokoje

-
70 000 zł
3 889 zł / m2
Status nieruchomości - wolne wolne

91

Lokalizacja obiektu Pelplin - Osiedle Limanowskiego
Limanowskiego 16

Metraż

17,95 m2

Piętro

Parter

Pokoje

-
70 000 zł
3 900 zł / m2
Status nieruchomości - sprzedane sprzedane

93

Lokalizacja obiektu Pelplin - Osiedle Limanowskiego
Limanowskiego 16

Metraż

20,46 m2

Piętro

Parter

Pokoje

-
Status nieruchomości - sprzedane sprzedane

94

Lokalizacja obiektu Pelplin - Osiedle Limanowskiego
Limanowskiego 16

Metraż

31,93 m2

Piętro

Parter

Pokoje

-
Status nieruchomości - sprzedane sprzedane

95

Lokalizacja obiektu Pelplin - Osiedle Limanowskiego
Limanowskiego 16

Metraż

31,97 m2

Piętro

Parter

Pokoje

-
Status nieruchomości - wolne wolne

96

Lokalizacja obiektu Pelplin - Osiedle Limanowskiego
Limanowskiego 16

Metraż

20,44 m2

Piętro

Parter

Pokoje

-
70 000 zł
3 425 zł / m2

Piwnice

Status nieruchomości - wolne wolne

37

Lokalizacja obiektu Pelplin - Osiedle Limanowskiego
Limanowskiego 16

Metraż

1,59 m2

Piętro

Parter

Pokoje

-
- zł / m2
Status nieruchomości - wolne wolne

42

Lokalizacja obiektu Pelplin - Osiedle Limanowskiego
Limanowskiego 16

Metraż

1,60 m2

Piętro

Parter

Pokoje

-
- zł / m2

Śledź prace budowlane

Postępy prac na placu budowy

Skontaktuj się z nami

Kontakt


Magdalena Czarnecka

Specjalista ds. sprzedaży i wynajmu mieszkań

Kamila Latoszewska

Specjalista ds. sprzedaży i wynajmu mieszkań

Anna Pawełek

Specjalista ds. sprzedaży i wynajmu mieszkań


Biura sprzedaży

Zblewska 20c
83-200 Starogard Gdański
Godziny otwarcia:
Pon. - Pt. 8:00 - 16:00
Wyznacz trasę Wyznacz trasę
Kasprowicza 18
83-000 Pruszcz Gdański
Godziny otwarcia:
Pon. - Pt. 8:00 - 16:00
Wyznacz trasę Wyznacz trasę

Formularz kontaktowy

Wyślij do nas wiadomość